38 Collins Rd, Northborough, MA 01532
Toggle Navigation
Images
Floor Plans
Map
38 Collins Rd
Northborough, MA 01532
Scroll to Content
Images
Slideshow
Photo Grid
Hide
Previous
Next
Show more
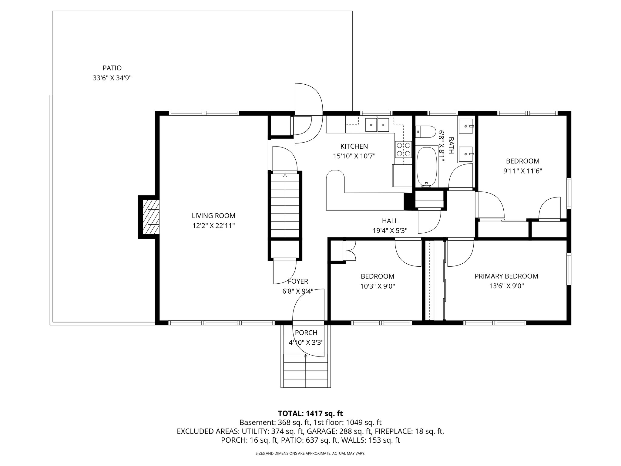
Floor Plans
Slideshow
Photo Grid
Hide
Previous
Next